Willow Path Cottages

Expanding Attainable Homeownership in Lynnwood

Willow Path Cottages is Habitat for Humanity of Snohomish County’s newest affordable homeownership community — an eight-home cottage housing development in Lynnwood designed to expand access to attainable homeownership and strengthen neighborhood stability.

This project represents our largest homeownership development to date and marks an important step toward building more scalable housing solutions in Snohomish County. Located in the heart of Lynnwood, Willow Path Cottages will provide families with stable, affordable homes close to schools, businesses, transit, grocery stores, and essential services.

Willow Path Cottages reflects Habitat’s commitment to creating safe, sustainable, and community-centered housing opportunities for working families.

Project timeline is geared to start sometime late summer, targeting project completion by Dec 2027.

Project Snapshot

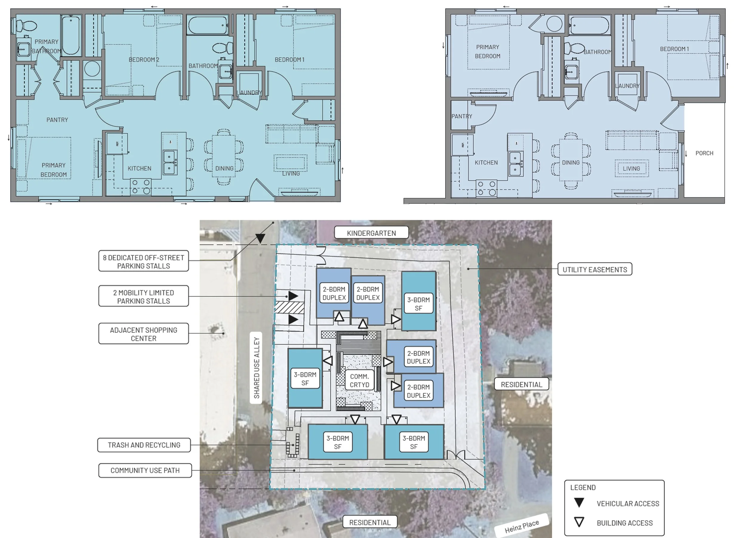
  • Location: Lynnwood, WA

  • Homes: 8 cottage-style homes (4 two-bedroom duplex units and 4 standalone three-bedroom homes)

  • Families Served: First-time homebuyers (60–80% AMI)

  • Timeline: Late Summer 2026 – December 2027

Why This Project Matters

Snohomish County faces a growing housing gap as home prices continue to outpace wages. The supply of starter homes has not kept up with demand, leaving many hardworking households without a clear path to homeownership.

Teachers, service workers, and families who form the backbone of our communities are increasingly priced out of the neighborhoods they serve. Without more attainable homeownership opportunities, the gap will continue to widen, impacting economic stability, school systems, and the long-term health of our communities.

Who This Project Serves

This project will create stable homeownership opportunities for eight local families. The benefits of these partnerships include generational wealth building, improved educational outcomes, and greater community involvement and stability.

Our future homeowners are first-time buyers earning between 60 and 80 percent of Area Median Income.

Homeowner Snapshot

Willow Path Cottages is designed for working individuals and families who are essential to our community—but increasingly priced out of it.

Examples include:

  • A local elementary school teacher

  • An aviation technician 

  • Service workers, caregivers, and young families

These are neighbors who contribute every day and deserve a stable, affordable place to call home.

What Is Cottage Housing?

Cottage housing is a thoughtful, community-centered approach to building homes. Instead of large single-family lots, several small, efficient homes are clustered together around a shared common space. Each home is a standalone unit with everything a family needs—kitchen, bathroom, private entrance—designed in a compact, affordable footprint.

For families, this creates an attainable path to homeownership. For the community, it offers a smart, sustainable way to create more housing choices while filling the “missing middle” housing option between single-family homes and larger apartment buildings in local neighborhoods.

What It Will Look Like?

  • 8 homes total

  • 2 duplex-style 2-bedroom homes

  • 4 standalone 3-bedroom homes

  • Shared central courtyard

  • Private outdoor space for each home

Sponsorship Opportunities

Help Bring Willow Path to Life! We are actively securing lead sponsors to bring this project to life. Partners who commit now will play a defining role in advancing one of Snohomish County’s most impactful housing solutions.

Every contribution helps our mission to build homes, communities, and hope - no matter the size. Individual donors are welcomed to contribute via our donation page.

Our Partners and Supporters

This project is made possible through community partnership, bringing together local organizations, public agencies, and dedicated supporters to expand access to safe, affordable homeownership in Snohomish County.

Special thanks to former Representative Ruth Kagi

FAQ

  • Details are coming soon. In general, applicants must live or work in Snohomish County, first-time homebuyers, and earn at or below 80% AMI.

  • Our Homeowner Services Manager will lead the selection process using established criteria. More information will be shared soon.

  • Applications are not open yet. Please check back soon for updates.

  • Through donations and sponsorships. We are currently seeking key partners at this early stage. Please contact sponsor@habitatsnohomish.org to learn more.

  • Early fall 2026.

  • Lynnwood, WA

News

Building More Than Homes

Willow Path Cottages is more than a housing development—it’s a step toward a more equitable, stable, and connected community.

Together, we can create opportunities for families to build strength, stability, and self-reliance through homeownership.